KUPUJĄCY NIE PONOSI OPŁAT PROWIZJI BIURA ORAZ JEST ZWOLNIONY Z PODATKU PCC!
Na sprzedaż malowniczo położona w Moszczenicy rozpoczęta budowa nowoczesnego domu jednorodzinnego na działce graniczącej z lasem o pow. 11,5ar. Wykonane zostały fundamenty, przyłącze prądu, wody i kanalizacji. Przewidywany koszt doprowadzenia budowy do stanu surowego zamkniętego to ok. 370 000zł
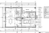
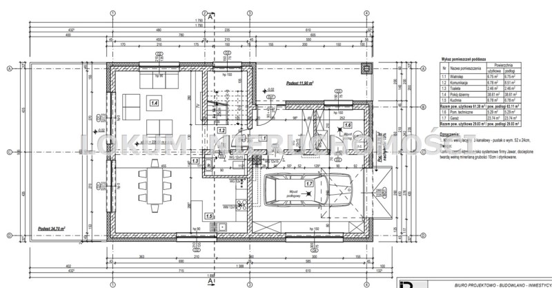
Powierzchnia użytkowa-143,83m2, całkowita-163,23m2 (w tym pow. garażu i kotłowni- 29,03m2).
Rozkład pomieszczeń:
Parter- salon z wyjściem na taras, kuchnia, łazienka, przedpokój, wiatrołap, kotłownia, garaż;
Piętro- 4 pokoje, łazienka. W budynku przewidziano nowoczesne rozwiązania, m. in. rekuperację.
Możliwość dokupienia lasu 0,5 ha za 40tys.
Zapraszamy na prezentację.
Na sprzedaż malowniczo położona w Moszczenicy rozpoczęta budowa nowoczesnego domu jednorodzinnego na działce graniczącej z lasem o pow. 11,5ar. Wykonane zostały fundamenty, przyłącze prądu, wody i kanalizacji. Przewidywany koszt doprowadzenia budowy do stanu surowego zamkniętego to ok. 370 000zł
Powierzchnia użytkowa-143,83m2, całkowita-163,23m2 (w tym pow. garażu i kotłowni- 29,03m2).
Rozkład pomieszczeń:
Parter- salon z wyjściem na taras, kuchnia, łazienka, przedpokój, wiatrołap, kotłownia, garaż;
Piętro- 4 pokoje, łazienka. W budynku przewidziano nowoczesne rozwiązania, m. in. rekuperację.
Możliwość dokupienia lasu 0,5 ha za 40tys.
Zapraszamy na prezentację.
Jeśli zakup nieruchomości uzależniony jest od sprzedaży innej nieruchomości– zapraszamy do współpracy, pomożemy Państwu w bezpieczny sposób przeprowadzić obie transakcje.
Zapewniamy bezpłatną pomoc doradcy finansowego w uzyskaniu kredytu na zakup nieruchomości.
Opis oferty zawarty na stronie internetowej sporządzany jest na podstawie oględzin nieruchomości oraz informacji uzyskanych od właściciela i może podlegać aktualizacji.
Powyższe nie stanowi oferty w rozumieniu art. 66 kodeksu cywilnego i nie jest wiążące.
Zapewniamy bezpłatną pomoc doradcy finansowego w uzyskaniu kredytu na zakup nieruchomości.
Opis oferty zawarty na stronie internetowej sporządzany jest na podstawie oględzin nieruchomości oraz informacji uzyskanych od właściciela i może podlegać aktualizacji.
Powyższe nie stanowi oferty w rozumieniu art. 66 kodeksu cywilnego i nie jest wiążące.
Oliwia Jadach
tel. 573431962
nr licencji osoby odpowiedzielnej za czynności pośrednictwa: 6096

















